Villa · Nouvelle construction Alicante · Aspe

498.000€
498.000€

Nouvelle construction · Villa · Poligono 19

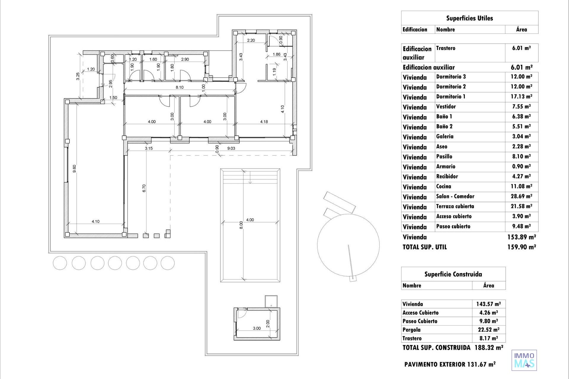
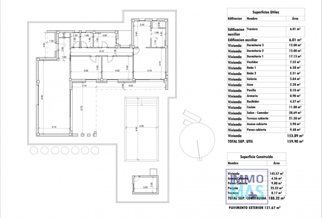
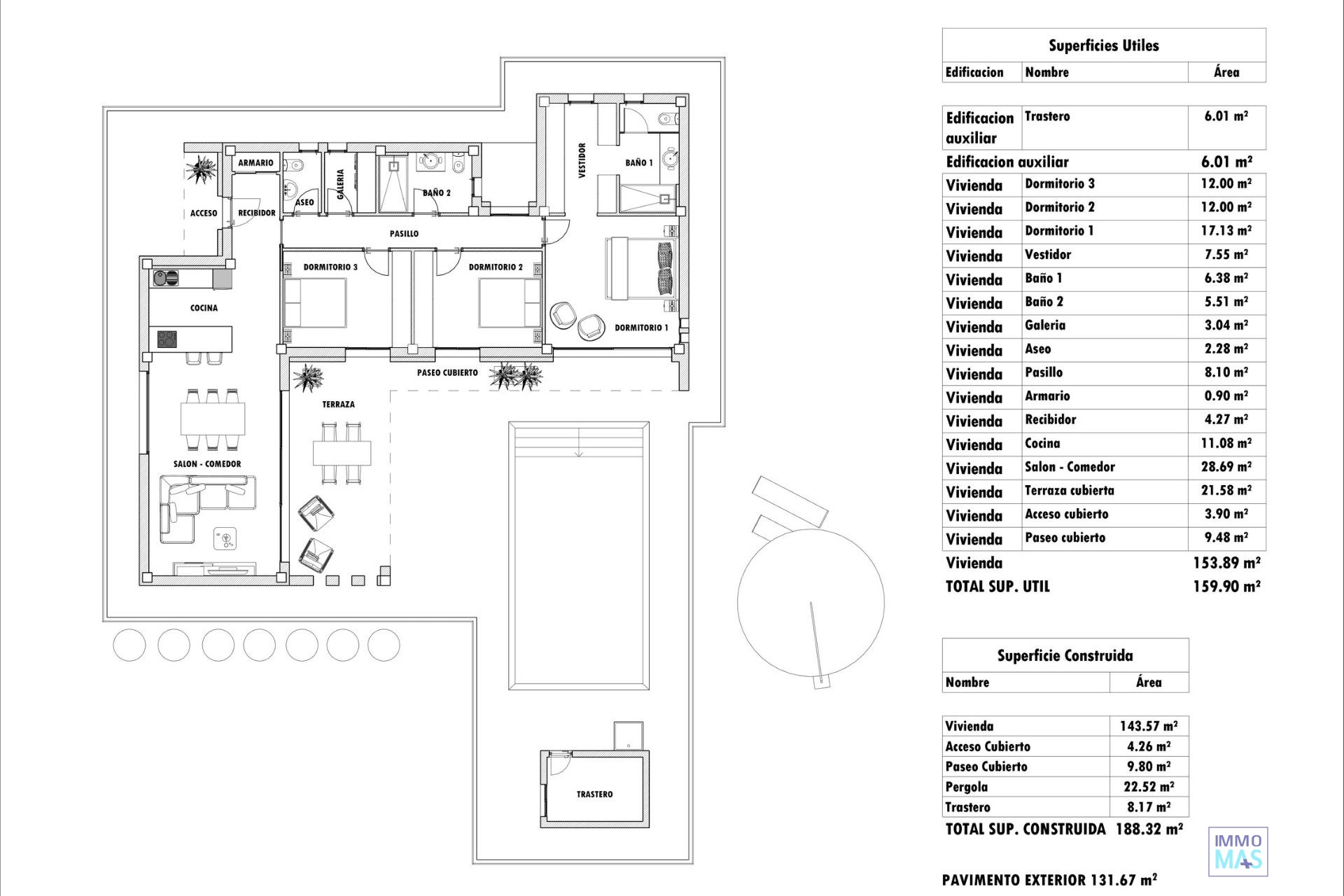
  • Mètres 188m2
  • Intrigue 13.172m2
  • Chambres 3
  • Salles de bain 3
  • Piscine Oui

Les caractéristiques

ImageChambres: 3
ImageSalles de bain: 3
ImageConstruit: 188m2
ImageIntrigue: 13.172m2
ImagePiscine: Oui
ImageUseable Build Space: 159 Msq.
ImageLocation: Mountain
ImageStorage / Trastero
ImagePrivate pool
Imagegarden
ImageGated
ImageNumber of Parking Spaces: 1
ImageNear Schools
ImageAir Conditioning: Pre-Installed
ImageDouble Bedrooms: 3
ImageParking - Space
ImageTerrace: 36 Msq.
ImageBeach: 25000 Meters

La description

Villas neuves situées dans la commune d'Aspe. Villas neuves avec plusieurs modèles au choix, comprenant 2, 3 ou 4 chambres, sur un ou deux étages et construites avec dalle ou structure : le prix exact sera calculé en fonction du modèle et du terrain choisi. Toutes les villas sont construites sur des terrains rustiques de plus de 10 000 m2, dont environ 2 500 m2 seront clôturés. Les villas disposent d'une cuisine américaine avec salon, de placards intégrés, d'une piscine privée, d'un porche, d'un débarras et d'une place de parking extérieure. Plusieurs terrains sont disponibles, le prix a été calculé sur la base d'un terrain de 75 000 euros (si vous choisissez un autre terrain, la différence sera payée ou remboursée en fonction du prix de celui-ci). Réalisé en autopromotion, livraison dans un délai de 12 mois à compter de l'octroi du permis. Si vous recherchez un environnement calme, à proximité de villages typiques espagnols loin de la foule touristique, entouré de montagnes, avec un très grand terrain et à environ 30 minutes de la mer, cette maison est faite pour vous. Aspe est un village espagnol typique avec tous les services nécessaires à la vie quotidienne, entouré de montagnes et avec plusieurs sites naturels à proximité où vous pourrez faire des randonnées ou du VTT. Situé à 25 km de la plage, à 9 km d'Elche et à environ 20 km de l'aéroport d'Alicante. 421

Emplacement

Agente

Images

Martine Suetens

CEO

Demander des informations

Responsable del tratamiento: MSA Real Estate, SL, Finalidad del tratamiento: Gestión y control de los servicios ofrecidos a través de la página Web de Servicios inmobiliarios, Envío de información a traves de newsletter y otros, Legitimación: Por consentimiento, Destinatarios: No se cederan los datos, salvo para elaborar contabilidad, Derechos de las personas interesadas: Acceder, rectificar y suprimir los datos, solicitar la portabilidad de los mismos, oponerse altratamiento y solicitar la limitación de éste, Procedencia de los datos: El Propio interesado, Información Adicional: Puede consultarse la información adicional y detallada sobre protección de datos Aquí.

WhatsApp